欢迎访问综合管理办公室官网!今天是:
欢迎访问综合管理办公室官网!

所区规划效果图

发布时间:2021-04-16 字体大小: 【 关闭 】

所区规划效果图

四号楼效果图

四号楼周边平面图

四号楼西侧绿化效果图

8室周边绿化效果图

应用技术楼效果图

8-2改扩建效果图

8-2大厅设计效果图

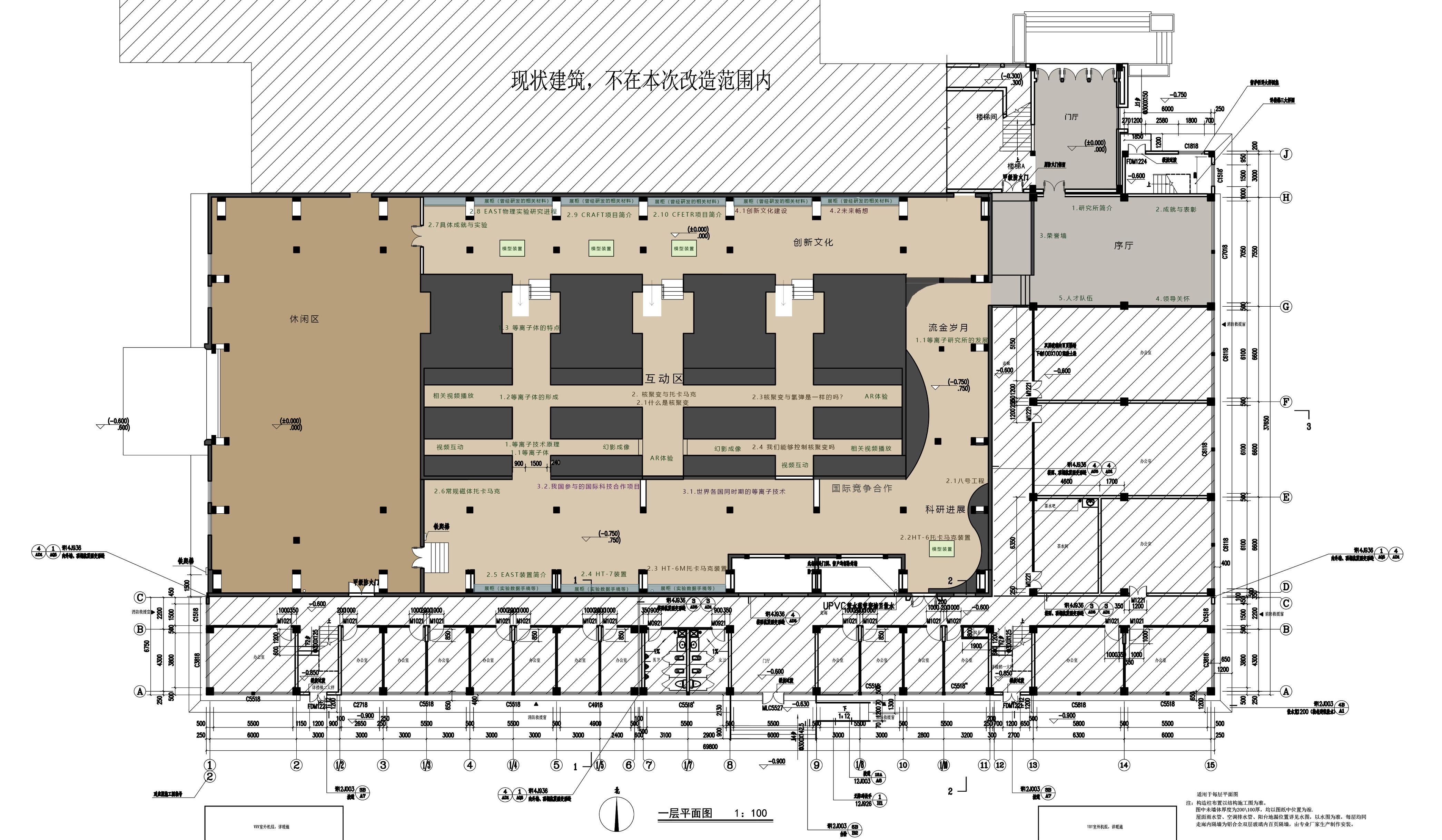
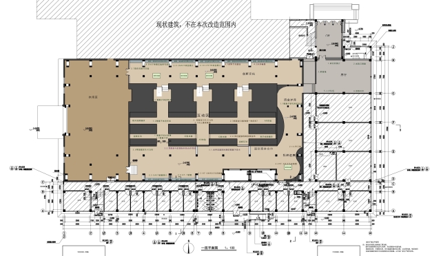
8-2大厅一楼和二楼设计平面图

+86-0551-65591307
微信公众号

中国科学院合肥物质科学研究院

传真:+86-0551-65591310

地址:中国安徽合肥蜀山湖路350号

邮编:230031

Email:admin@ipp.ac.cn

TOP